DİYARBAKIR SU VE KANALİZASYON İDARESİ GENEL MÜDÜRLÜĞÜ & İLBANK A.Ş. GENEL MÜDÜRLÜĞÜ

SU KAYIPLARINI AZALTMA VE SCADA BİNASI PROJESİ

Proje Yeri : Diyarbakır
Hidrolik Modeli Oluşturulan Şebeke Uzunluğu : 2.089,73 km
Planlanan DMA Oda Sayısı : 128 Adet
SCADA Binası Genel Kullanım Alanı : 670 m2 (Bodrum, Zemin, 1.Kat)

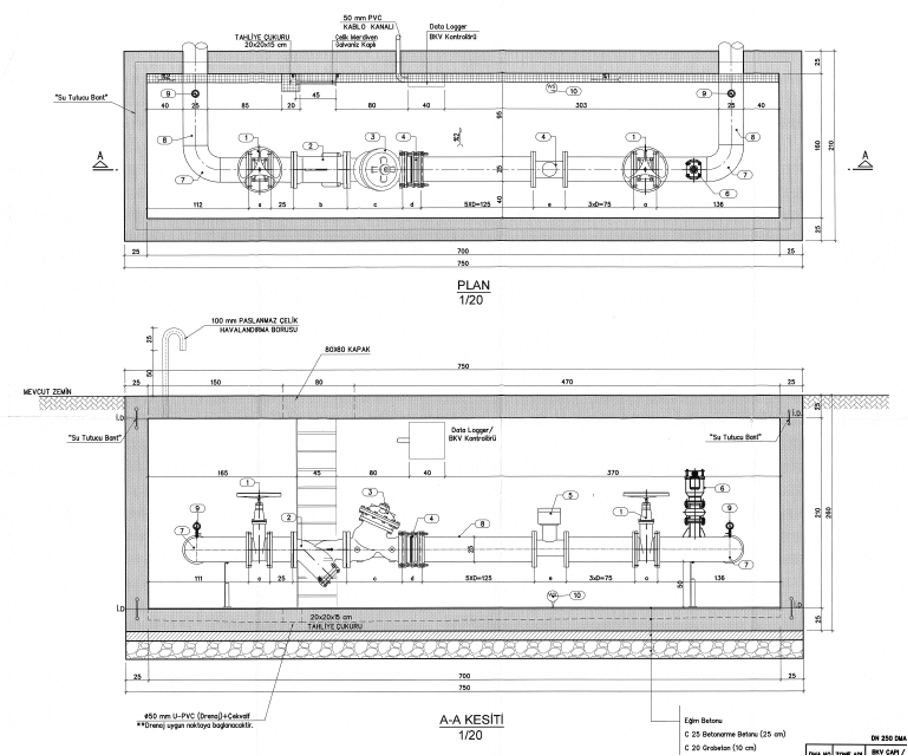
Örnek Bir DMA Odası Plan ve Kesitleri

SCADA Binası Genel Yerleşim Planı